Działka budowlana Kraków Zwierzyniec, Przegorzały, Rybna
Kraków Pokaż na mapie ›
Dodane: Środa, 15 Kwiecień, 2026 22:16
1 190 000 zł
1005 zł/m2
Szczegóły ogłoszenia
- Kategoria: Działki i grunty / Sprzedaż
- Pow. działki:1184 m2
- Rodzaj działki:Budowlana
- Sprzedaż:Pośrednik
- Cena: 1 190 000 zł / 1005 zł/m2
Opis oferty
|*Zdjęcia należą do właściciela oferty.
Uzbrojona działka 1184m2 m2 z pozwoleniem na budowę w Krakowie - Przegorzałach
Oferujemy Państwu działkę o powierzchni 1184 m 2 położoną w nadwiślańskiej części Krakowskich Przegorzał - jednej z prestiżowych dzielnic w centrum Krakowa, od wschodu graniczącej ze zwierzyńcem , od północy z Wolą Justowską , a od zachodu z Bielanami . Działka jest płaska i posiada kształt zbliżony do prostokąta o wymiarach 23m x 35m. Wyjątkowości lokalizacji nadaje bliskość krakowskiego Starego Miasta - 4 km oraz obwodnicy miasta - 5 km, zapewniając dostęp do infrastruktury edukacyjnej, handlowo-usługowej oraz rekreacyjnej.
Działka uzbrojona w wodę, kanalizację, gaz, prąd.
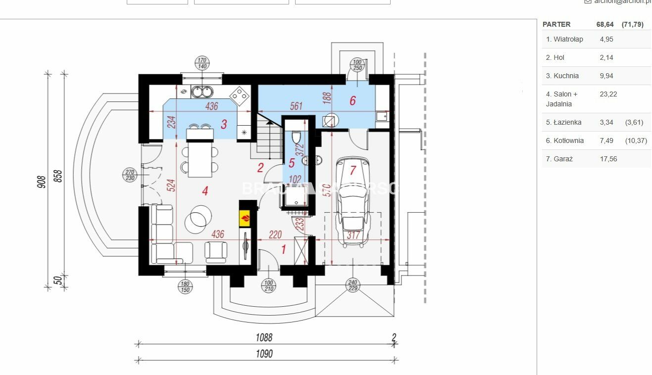
Aktualne pozwolenie na budowę domu według projektu Dom w Werbenach 3 (B) -bliźniak firmy Archon. Jest możliwość wybudowania domu prze firmę budowlana właściciela działki.
Pow użytkowa 142,2m2, powierzchnia po podłodze 200,4m2, wysokość budynku 8,63m, powierzchnia zabudowy 125m2.
Kontakt:
Michał + 48 518 - pokaż numer telefonu -
::DODATKOWE INFORMACJE |
Prąd: jest |
Gaz: jest |
Woda: na działce |
Dojazd: droga gruntowa |
Otoczenie: działki zabudowane |
Kanalizacja: miejska |
Internet: TAK |
Komunikacja publ.: bus, autobus miejski |
Położenie: obrzeża miasta |
Opłaty w czynszu: administracja |
Zagosp. działki: niezagospodarowana |
Ukształtowanie działki: płaska |
Kształt działki: kwadrat |
Ogrodzenie działki: brak |
Warunki zabudowy: prawomocne pozwolenie na budowę |
Zabudowa działki: brak |
::LINK DO STRONY |
sadurscy.pl/offer/BS4-GS-314842
::KONTAKT DO AGENTA |
Michał Dzięcioł |
+48 518 - pokaż numer telefonu - |
@
::DANE BIURA |
Oddział BS4, Krowodrza |
Kołowa 5/3 |
30-134 Kraków |
12 633-90-20
Pośrednik odpowiedzialny zawodowo za wykonanie umowy pośrednictwa: Dariusz Sadurski (licencja nr: 803)
|
Oferta wysłana z systemu Galactica Virgo
Numer oferty: BS4-GS-314842
- Wypromuj ogłoszenie
- Zgłoś naruszenie
- Drukuj ulotkę
- Edytuj/usuń ogłoszenie
- Udostępnij ogłoszenie
- Dodaj na Facebook












