Lokal użytkowy Kraków Stare Miasto, Stare Miasto, Szewska
Kraków Pokaż na mapie ›
Dodane: Wtorek, 20 Styczeń, 2026 12:10
5 000 zł
Szczegóły ogłoszenia
- Kategoria: Biura i lokale / Do wynajęcia
- Przeznaczenie:Biurowe
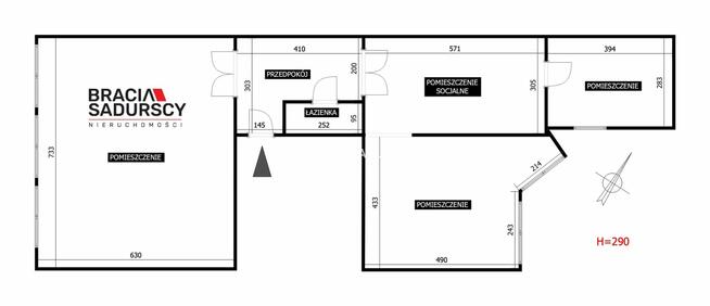
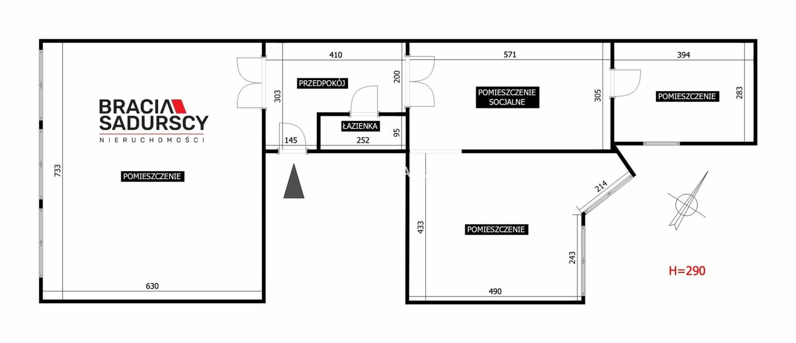
- Powierzchnia:106 m2
- Sprzedaż:Pośrednik
- Cena: 5 000 zł
Opis oferty
|Ekskluzywny lokal do wynajęcia w prestiżowej kamienicy - Stare Miasto, Kraków
Do wynajęcia wyjątkowy lokal położony w reprezentacyjnej, zabytkowej kamienicy w samym sercu krakowskiego Starego Miasta. Prestiżowa lokalizacja - zaledwie kilka kroków od Plant oraz Rynku Głównego - zapewnia niepowtarzalny klimat i doskonałą rozpoznawalność adresu.
Lokal oferuje:
trzy eleganckie, jasne pomieszczenia,
funkcjonalny aneks kuchenny w pełni wyposażony w wysokiej klasy sprzęt AGD (zmywarka, lodówka),
łazienkę prysznicem.
Wnętrza zostały poddane kompleksowemu remontowi i wykończone z dbałością o każdy detal. Lokal znajduje się w idealnym stanie technicznym i wizualnym, gotowy do natychmiastowego użytkowania.
Z okien rozpościera się widok na ulicę Szewską - jedną z najbardziej prestiżowych i klimatycznych ulic Krakowa.
Oferta idealna dla kancelarii, biura lub innej działalności wymagającej reprezentacyjnej przestrzeni w wyjątkowej lokalizacji.
Koszt Najmu:
Czynsz: 5000 zł
Czynsz Administracyjny ( w tym zaliczki: woda, ogrzewanie i gaz): 1500 zł
Prąd: według zużycia
Kaucja: 5000 zł
Zapraszamy wszystkie zainteresowane osoby do kontaktu oraz umówienia wizyty.
Możliwość wynajęcia od zaraz!
Zadzwoń i umów się na prezentację
Ewa Biłocha Tel: 511- 272- 188
Mail: @
::DODATKOWE INFORMACJE |
Rodzaj budynku: kamienica |
Gaz: jest |
Woda: jest |
Dojazd: ASFALTOWA |
Otoczenie: centrum miasta |
Ogrzewanie: C.O. GAZOWE |
Internet: TAK |
Komunikacja publ.: MPK, autobus miejski, tramwaj |
Winda: NIE |
Usytuowanie: dwustronne |
Drzwi antywłamaniowe: TAK |
Witryna wystawowa: brak |
Wejście: od ulicy |
Liczba wejść: 1 |
Opłaty w czynszu: wywóz nieczystości, woda ciepła, ogrzewanie, gaz, Części wspólne, administracja |
Opłaty wg liczników: prąd |
Stan lokalu: idealny |
Okna: drewniane |
Instalacje: ELEKTRYCZNA, GAZOWA |
Powierzchnia użytkowa : 106 |
Rok budowy: 1 |
Rodzaj lokalu: jednopoziomowy |
Przeznaczenie lokalu: biurowy |
Liczba pokoi: 3 |
Typ kaucji: jednomiesięczna |
::LINK DO STRONY |
sadurscy.pl/offer/BS4-LW-313575
::KONTAKT DO AGENTA |
Ewa Biłocha |
+48 511 - pokaż numer telefonu - |
@
::DANE BIURA |
Oddział BS4, Krowodrza |
Kołowa 5/3 |
30-134 Kraków |
12 633-90-20
|
Oferta wysłana z systemu Galactica Virgo
Numer oferty: BS4-LW-313575
Sprawdź zainteresowanie tym ogłoszeniem
Wyświetlenia
Data dodania
Ostatnio widziany
Obserwujących
Wysłane zapytania
Odsłony telefonu
Powiadom o podobnych ogłoszeniach
Lokalizacja: Kraków
Kategoria: Nieruchomości » Biura i lokale » Do wynajęcia
Cena: od 4500 zł do 6000 zł Powierzchnia : od 90 m2 do 122 m2
Chcę otrzymywać powiadomienia o nowych ofertach
- Wypromuj ogłoszenie
- Zgłoś naruszenie
- Drukuj ulotkę
- Edytuj/usuń ogłoszenie
- Udostępnij ogłoszenie
- Dodaj na Facebook






























