Wyjątkowe mieszkanie 3-pokojowe 62,40m2 Czyżyny
Kraków / Czyżyny Pokaż na mapie ›
Dodane: Piątek, 19 Grudzień, 2025 16:02
1 123 200 zł
18116 zł/m2
Szczegóły ogłoszenia
- Kategoria: Mieszkania / Sprzedaż
- Powierzchnia:62 m2
- Liczba pokoi:3 pokoje
- Zabudowa:Apartamentowiec
- Tech. budowy:Inne
- Piętro :1 piętro
- Liczba pięter:3 piętra
- Rynek:Pierwotny
- Rok budowy:2026
- Sprzedaż:Pośrednik
- Inf. dodatkowe:Balkon
- Cena: 1 123 200 zł / 18116 zł/m2
Opis oferty
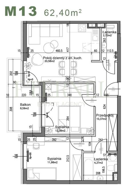
Wyjątkowe mieszkanie 3-pokojowe 62,40m² – ul. ŚliwkowaOpis nieruchomości: Prezentujemy wyjątkowe mieszkanie o powierzchni
62,40 m² zlokalizowane na pierwszym piętrze nowoczesnego budynku
przy ul. Śliwkowej w Krakowie. To przestronne trzypokojowe mieszkanie
zostało zaprojektowane z myślą o rodzinach ceniących komfort i
funkcjonalność.
Stan mieszkania: Mieszkanie w stanie deweloperskim z przemyślanym
układem funkcjonalnym zapewniającym wyraźny podział na strefę
dzienną i prywatną. Centralnym punktem jest jasny salon z aneksem
kuchennym 20,58 m² z dostępem na balkon. Strefa prywatna obejmuje
dwie niezależne sypialnie (12,38 m² oraz 11,98 m²), dwie
niezależne łazienki (2,72 m² oraz 4,37 m²) oraz przestronny
przedpokój 10,37 m².
Stan budynku: Nowoczesny budynek w stanie deweloperskim z doskonałym
doświetleniem i optymalnym nasłonecznieniem wszystkich pomieszczeń.
Lokalizacja i atuty danej lokalizacji: Doskonała lokalizacja przy ul.
Śliwkowej w Krakowie zapewniająca spokój i wygodę mieszkania na
pierwszym piętrze. Wyjątkowym atutem jest przestronny balkon 8,59
m² stanowiący naturalne przedłużenie przestrzeni mieszkalnej. Na
szczególną uwagę zasługują dwie niezależne łazienki, które
znacząco podnoszą komfort codziennego życia rodziny. Idealna
propozycja dla rodzin z dziećmi, osób pracujących zdalnie
potrzebujących dodatkowego gabinetu oraz wszystkich ceniących
przestrzeń i elastyczną aranżację wnętrz.
Cena 1 123 200 zł (18 000 zł za m²).
Informacja dodatkowa: Na pierwszym piętrze budynku znajduje się
również dziewięć innych mieszkań o różnych metrażach:
mieszkania 2-pokojowe (42,56 m², 43,13 m², 48,13 m²), mieszkania
3-pokojowe (47,03 m², 62,20 m², 63,82 m², 64,07 m²) oraz
mieszkanie 1-pokojowe (33,25 m²), wszystkie z własnymi balkonami lub
loggiami.
Klauzula: Powyższa oferta ma charakter informacyjny i nie stanowi
oferty handlowej w rozumieniu art. 66 §1 Kodeksu Cywilnego. Zgodnie z
ustawą o gospodarce nieruchomościami (Rozdz. 2, art. 180 pkt 3),
przed oględzinami nieruchomości wymagane jest podpisanie
standardowej umowy pośrednictwa.
Sprawdź zainteresowanie tym ogłoszeniem
Wyświetlenia
Data dodania
Ostatnio widziany
Obserwujących
Wysłane zapytania
Odsłony telefonu
Powiadom o podobnych ogłoszeniach
Lokalizacja: Kraków
Kategoria: Nieruchomości » Mieszkania » Sprzedaż
Cena: od 954500 zł do 1291500 zł Powierzchnia : od 53 m2 do 71 m2
Chcę otrzymywać powiadomienia o nowych ofertach
- Wypromuj ogłoszenie
- Zgłoś naruszenie
- Drukuj ulotkę
- Edytuj/usuń ogłoszenie
- Udostępnij ogłoszenie
- Dodaj na Facebook
























