Stary Prokocim. Gotowe, możliwość 4 pokoi.
Kraków Pokaż na mapie ›
Dodane: Wtorek, 02 Grudzień, 2025 03:10
1 349 638 zł
15164 zł/m2
Szczegóły ogłoszenia
- Kategoria: Mieszkania / Sprzedaż
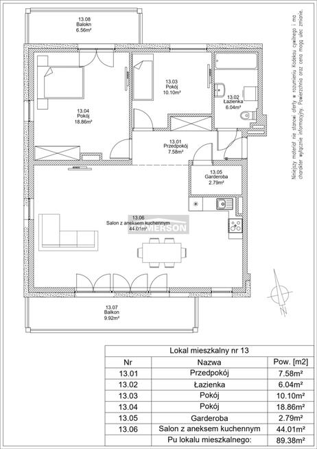
- Powierzchnia:89 m2
- Liczba pokoi:3 pokoje
- Zabudowa:Blok
- Tech. budowy:Inne
- Piętro :3 piętro
- Liczba pięter:3 piętra
- Rynek:Pierwotny
- Rok budowy:2025
- Sprzedaż:Pośrednik
- Inf. dodatkowe:Balkon
- Cena: 1 349 638 zł / 15164 zł/m2
Opis oferty
Nowa inwestycja mieszkaniowa w Prokocimiu.Kameralny trzypiętrowy budynek z windą, zaledwie 13 mieszkań.
Realizacja prac budowlanych w IV kw 2025, odbiór II kw 2026 roku.
Mieszkanie na ostatnim piętrze z dwoma balkonami. Dwie sypialni z
możliwością wydzielenia dodatkowej, duża łazienka, garderoba.
Przestronny 45-metrowy salon, część dzienna świetnie doświetlona
od południa i zachodu. Wyjście na ogród ze wszystkich pokoi za
wyjątkiem najmniejszego. Łazienka i dodatkowo oddzielne wc.
Ekspozycja południe, zachód i północ.
Ogrzewanie i ciepła woda centralne z kotłowni gazowej. Mieszkanie w
stanie deweloperskim rozszerzonym o klimatyzację wraz z urządzeniami
w standardzie. Obligatoryjny zakup miejsca postojowego w garażu
podziemnym od 45.000 do 55.000.
Świetnie skomunikowana okolica, 200 metrów do przystanku
autobusowego przy Bieżanowskiej, 600 metrów do tramwaju przy
Wielickiej, 700 metrów do stacji kolei aglomeracyjnej
Kraków-Prokocim. Kompletna infrastruktura handlowa i usługowa w
zasięgu spaceru, również liczne tereny zielone. Park Jerzmanowskich
400 metrów, Park Lilli Wenedy 600 metrów, kąpielisko Bagry 1100
metrów.
Zapraszam na prezentację.
Zapraszam do zapoznania się z naszą ofertą kredytową oraz
wykończenia wnętrz.
Opiekun oferty: Michał Malina
______________
Powyższa oferta ma charakter informacyjny i nie stanowi oferty
handlowej w rozumieniu art. 66 par. 1 Kodeksu Cywilnego oraz innych
właściwych przepisów prawnych.
Powiadom o podobnych ogłoszeniach
Lokalizacja: Kraków
Kategoria: Nieruchomości » Mieszkania » Sprzedaż
Cena: od 1147000 zł do 1552000 zł Powierzchnia : od 76 m2 do 102 m2
Chcę otrzymywać powiadomienia o nowych ofertach
Michał Malina
Konto firmowe
Na Lento.pl od 17 mar 2021
Odpowiada szybko
Strona użytkownika
- Wypromuj ogłoszenie
- Zgłoś naruszenie
- Drukuj ulotkę
- Edytuj/usuń ogłoszenie
- Udostępnij ogłoszenie
- Dodaj na Facebook

























