Mieszkanie Kraków Kraków-Podgórze, Podgórze Duchackie, Polonijna
Kraków Pokaż na mapie ›
Odświeżone: Niedziela, 14 Grudzień, 2025 08:06
699 000 zł
13189 zł/m2
Szczegóły ogłoszenia
- Kategoria: Mieszkania / Sprzedaż
- Powierzchnia:53 m2
- Liczba pokoi:3 pokoje
- Zabudowa:Inne
- Tech. budowy:Wielka Płyta
- Piętro :2 piętro
- Liczba pięter:4 piętra
- Rynek:Wtórny
- Rok budowy:1975
- Sprzedaż:Pośrednik
- Cena: 699 000 zł / 13189 zł/m2
Opis oferty
Szanowni Państwo mamy przyjemność zaprezentować mieszkanie w Krakowie, w pobliżu ul. Polonijnej.Zapraszamy do zapoznania się z naszymi wszystkimi ofertami na stronie mieszkania-krakow.
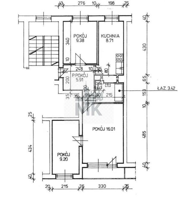
Na sprzedaż mieszkanie 3-pokojowe, 53 m z loggią okolice ul. Polonijnej
Lokal:
powierzchnia: ok. 53 m
układ: 3 pokoje, kuchnia, łazienka, przedpokój, loggia
dodatkowo: piwnica
ekspozycja okien: południowy-wschód, północny-zachód
Media i opłaty:
ogrzewanie i ciepła woda: miejskie
czynsz administracyjny: ok. 520 zł (w tym CO, woda, śmieci, fundusz remontowy)
Budynek:
niski blok z ok. 1975 r.
przed budynkiem parking dla mieszkańców
Lokalizacja:
w pobliżu ul. Polonijnej
pełna infrastruktura: sklepy, szkoły, przedszkola, punkty usługowe
bardzo dobra komunikacja w pobliżu przystanki MPK
Funkcjonalne mieszkanie w spokojnej okolicy, z pełną infrastrukturą idealne dla rodziny lub pod inwestycję. Polecamy!
SZANOWNI KLIENCI, PRACUJEMY 7 DNI W TYGODNIU OD GODZINY 8.00 DO 22.00. ZAPRASZAMY!
W RAMACH NASZYCH USŁUG:
- oferujemy zniżki dotyczące taksy notarialnej;
- pomagamy uzyskać finansowanie nieruchomości.
Treść niniejszego ogłoszenia nie stanowi oferty handlowej w rozumieniu Kodeksu Cywilnego. Opis oferty zawarty na stronie internetowej sporządzany jest na podstawie
oględzin nieruchomości / informacji uzyskanych od właściciela, może podlegać aktualizacji i nie stanowi oferty określonej w art. 66 i następnych K.C.
Oferta wysłana z programu IMO dla biur nieruchomości
Numer oferty: 18874
Sprawdź zainteresowanie tym ogłoszeniem
Wyświetlenia
Data dodania
Ostatnio widziany
Obserwujących
Wysłane zapytania
Odsłony telefonu
Powiadom o podobnych ogłoszeniach
Lokalizacja: Kraków
Kategoria: Nieruchomości » Mieszkania » Sprzedaż
Cena: od 594000 zł do 804000 zł Powierzchnia : od 45 m2 do 61 m2
Chcę otrzymywać powiadomienia o nowych ofertach
- Wypromuj ogłoszenie
- Zgłoś naruszenie
- Drukuj ulotkę
- Edytuj/usuń ogłoszenie
- Udostępnij ogłoszenie
- Dodaj na Facebook














