Mieszkanie Kraków Dębniki, Ruczaj, Kobierzyńska
Kraków Pokaż na mapie ›
Ogłoszenie archiwalne Wygasło: Środa, 21 Styczeń, 2026 17:14
1 295 000 zł
20234 zł/m2
Szczegóły ogłoszenia
- Kategoria: Mieszkania / Sprzedaż
- Powierzchnia:64 m2
- Liczba pokoi:3 pokoje
- Zabudowa:Blok
- Piętro :1 piętro
- Liczba pięter:Wieżowiec
- Rynek:Wtórny
- Rok budowy:2022
- Sprzedaż:Pośrednik
- Cena: 1 295 000 zł / 20234 zł/m2
Opis oferty
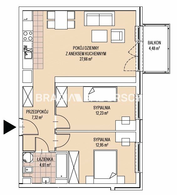
|Na sprzedaż 3 pokojowe mieszkanie z balkonem, położone na nowym osiedlu na Ruczaju.
Mieszkanie usytuowane jest na pierwszym piętrze w sześciopiętrowym bloku z 2022 roku, przy ulicy Kobierzyńskiej.
Na powierzchnię 64,77 m2 składa się :
- pokój dzienny połączony z aneksem kuchennym (27,66 m2) oraz wyjściem na balkon,
- dwie sypialnie (12,95 m2 12,23 m2,
- łazienka razem z WC (4,61m2),
- przedpokój (7,32m2).
Osiedle zamknięte blok z monitoringiem.
Mieszkanie wykończone i wyposażone w wysokim standardzie z dbałością o każdy szczegół. Meble w stałej zabudowie robione na wymiar.
Okna nowe PCV o ekspozycji na południowy- wschód.
Drzwi wejściowe antywłamaniowe.
Czynsz wraz z funduszem remontowym, wodą i ogrzewaniem wynosi 550 zł liczony na 1 osobe.
Dodatkowo płatny jest tylko prąd.
Ogrzewanie i ciepła woda - miejskie.
W budynku nie ma gazu.
Mieszkanie gotowe do zamieszkania bez ponoszenia nakładów finansowych.
Widok na osiedle
Mieszkanie jest wygodne i funkcjonalne, a okolica spokojna, zielona i bardzo przyjemna, z pełną infrastrukturą usługowo-handlową. W sąsiedztwie znajdują się liczne sklepy, restauracje, przedszkola, żłobki, szkoła, place zabaw, bank, przychodnia, a także rozległe tereny zielone z alejkami spacerowymi. Blisko jest do przystanków komunikacji miejskiej (autobusy, szybki tramwaj)
Doskonałe mieszkanie pary, a ze względu na sąsiedztwo Kampusu UJ, korporacji BUMA - idealne także jako inwestycja pod wynajem.
Obecny właściciel wynajmuje miejsce parkingowe w garażu podziemnym w budynku w cenie 350 zł/mies - istnieje możliwość przejęcia umowy najmu.
Biuro pomaga bezpiecznie przeprowadzić transakcję.
Zapraszamy do prezentacji.
Kontakt:
Małgorzata Baran-Michałowska
+48 782 - pokaż numer telefonu -
Lub @
Prezentacja nieruchomości po podpisaniu umowy pośrednictwa jest bezpłatna.
::DODATKOWE INFORMACJE |
Rodzaj budynku: blok |
Dozór budynku: os. zamknięte |
Głośność: ciche |
Plac zabaw: TAK |
Widok: na inne budynki |
Gaz: brak |
Woda: ciepła - miejska |
Dojazd: asfalt |
Otoczenie: centrum miasta |
Ogrzewanie: C.O. miejskie |
Komunikacja publ.: autobus miejski, tramwaj |
Winda: TAK |
Liczba wind: 1 |
Rozkład: jednostronne |
Usytuowanie: jednostronne |
Drzwi antywłamaniowe: TAK |
Opłaty w czynszu: wywóz śmieci, wywóz nieczystości, woda ciepła, woda, Winda, monitoring, fundusz remontowy, Części wspólne, CO |
Opłaty wg liczników: prąd |
Rodzaj mieszkania: jednopoziomowe |
Garaż: miejsce garażowe |
Stan lokalu: bardzo dobry |
Okna: PCV |
Instalacje: dobre |
Balkon: średni |
Liczba balkonów: 1 |
Powierzchnia balkonów/tarasów : 3 |
Powierzchnia użytkowa : 64,7700 |
Rok budowy: 2022 |
Liczba pokoi: 3 |
Wysokość pomieszczeń : 2,7000 |
Liczba sypialni: 2 |
Powierzchnia pokoi : 27,66 12,95 12,23 |
Podłogi pokoi: panele |
Ściany pokoi: gładzie gipsowe |
Wystawa okien - pokoje : Pd-Wsch |
Typ kuchni: aneks kuchenny - połączony z salonem |
Rodzaj kuchni: aneks kuchenny |
Podłoga kuchni: panele |
Typ łazienki: razem z wc |
Liczba łazienek: 1 |
Powierzchnia łazienki : 4,61 |
Glazura łazienki: glazura |
Podłoga łazienki: terakota |
Wyposażenie łazienki: WC, umywalka, lustro, kabina prysznicowa |
Ściany łazienki: glazura |
Liczba WC: 1 |
Glazura WC: glazura |
Podłoga WC: terakota |
Ściany WC: glazura |
Liczba przedpokoi: 1 |
Powierzchnia przedpokoi : 7,32 |
Podłoga przedpokoi: panele |
Ściany przedpokoi: gładzie gipsowe |
::LINK DO STRONY |
sadurscy.pl/offer/BS1-MS-312607
::KONTAKT DO AGENTA |
Małgorzata Baran-Michałowska |
+48 782 - pokaż numer telefonu - |
@
::DANE BIURA |
Oddział BS1, Kapelanka |
Kapelanka 1A/1 |
30-347 Kraków |
12 429-25-12
|
Oferta wysłana z systemu Galactica Virgo
Numer oferty: BS1-MS-312607
Sprawdź zainteresowanie tym ogłoszeniem
Wyświetlenia
Data dodania
Ostatnio widziany
Obserwujących
Wysłane zapytania
Odsłony telefonu
Powiadom o podobnych ogłoszeniach
Lokalizacja: Kraków
Kategoria: Nieruchomości » Mieszkania » Sprzedaż
Cena: od 1101000 zł do 1489500 zł Powierzchnia : od 54 m2 do 74 m2
Chcę otrzymywać powiadomienia o nowych ofertach
To ogłoszenie jest archiwalne i może być nieaktualne.

Konto firmowe
Na Lento.pl od 17 lip 2019
Odpowiada szybko
Strona użytkownika
- Wypromuj ogłoszenie
- Zgłoś naruszenie
- Edytuj/usuń ogłoszenie
- Udostępnij ogłoszenie
- Dodaj na Facebook





























