Lokal biurowy w rejonie Bonarki
Kraków Pokaż na mapie ›
Dodane: Niedziela, 01 Marzec, 2026 05:09
12 900 zł
Szczegóły ogłoszenia
- Kategoria: Biura i lokale / Do wynajęcia
- Przeznaczenie:Inne przeznaczenie
- Powierzchnia:300 m2
- Sprzedaż:Pośrednik
- Cena: 12 900 zł
Opis oferty
Do wynajęcia lokal biurowy o powierzchni 300 m2 w nowoczesnymbiurowcu klasy A z ochroną i parkingiem podziemnym w rejonie centrum
handlowego Bonarka.
Lokalizacja w okolicy ulic Henryka Kamińskiego, Turowicza, Walerego
Sławka zapewnia doskonałą komunikację z innymi częściami miasta.
W bezpośrednim sąsiedztwie znajdują się Rondo Matecznego,
obwodnica miasta oraz autostrada A4, co umożliwia dogodny dojazd
zarówno do centrum, jak i w kierunku lotniska Kraków-Balice.
BUDYNEK:
Biurowiec mieści się w nowoczesnym kompleksie budynków klasy A.
Posiada powierzchnię 8003,5 m² GLA na sześciu kondygnacjach
naziemnych oraz jednej podziemnej. Budynek oferuje całodobową
ochronę, miejsca postojowe na parkingu podziemnym oraz naziemnym, 4
cichobieżne windy oraz kontrolę dostępu.
Standard obiektu obejmuje nowoczesne systemy klimatyzacji VRF,
wentylację mechaniczną, zapewniającą dostęp do świeżego
powietrza, łącze światłowodowe, a także zaawansowane rozwiązania
bezpieczeństwa, w tym czujniki dymu i system tryskaczowy. Budynek
posiada certyfikację BREEAM, potwierdzającą wysoką efektywność
energetyczną oraz zastosowanie proekologicznych technologii.
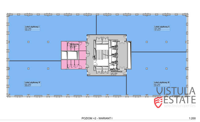
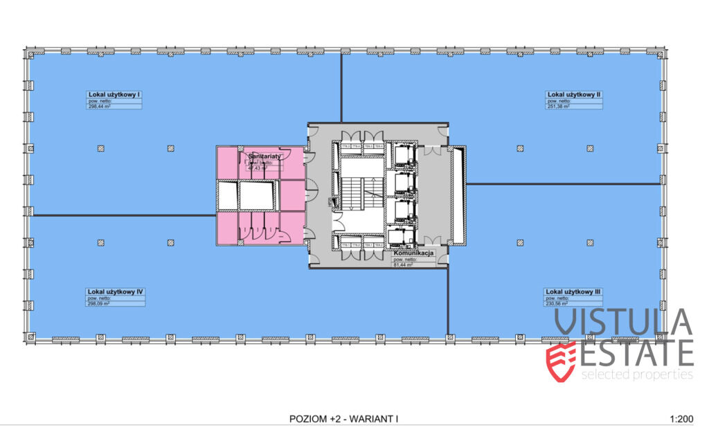
WAŻNE:
- 2 piętro,
- 300 m2,
- 1200 m2 (powierzchnia piętra, z możliwością podziału),
- lokal umeblowany,
- możliwość dowolnego podziału i dostosowania powierzchni,
- klimatyzacja (system VRF),
- wentylacja mechaniczna,
- światłowód,
- możliwość wynajmu również na działalność usługową.
FINANSE:
Czynsz najmu wynosi 43 zł/m2 netto (stawka obowiązuje przy umowie na
5 lat, przy zawarciu umowy do 30.06.2026 r.).
Dodatkowo płatna opłata eksploatacyjna w wysokości 22,5 zł/m2 (do
weryfikacji) oraz prąd według zużycia.
Możliwość wynajmu miejsc postojowych w cenie 250 złotych netto.
Współczynnik budynkowy wynosi 5 %.
Przed oglądaniem lokalu wymagane podpisanie umowy pośrednictwa.
Biuro pobiera prowizję.
Zapraszam na prezentację lokalu.
Katarzyna Wójcik
Vistula Estate
@
+48 694 - pokaż numer telefonu -
Sprawdź zainteresowanie tym ogłoszeniem
Wyświetlenia
Data dodania
Ostatnio widziany
Obserwujących
Wysłane zapytania
Odsłony telefonu
Powiadom o podobnych ogłoszeniach
Lokalizacja: Kraków
Kategoria: Nieruchomości » Biura i lokale » Do wynajęcia
Cena: od 11000 zł do 15000 zł Powierzchnia : od 255 m2 do 345 m2
Chcę otrzymywać powiadomienia o nowych ofertach
- Wypromuj ogłoszenie
- Zgłoś naruszenie
- Drukuj ulotkę
- Edytuj/usuń ogłoszenie
- Udostępnij ogłoszenie
- Dodaj na Facebook




















