Dom Kraków Swoszowice, Swoszowice, Chałubińskiego
Kraków Pokaż na mapie ›
Ogłoszenie archiwalne Wygasło: Poniedziałek, 15 Grudzień, 2025 16:21
5 500 000 zł
18333 zł/m2
Szczegóły ogłoszenia
- Kategoria: Domy / Sprzedaż
- Powierzchnia:300 m2
- Liczba pokoi:5 i więcej pokoi
- Pow. działki:1063 m2
- Rynek:Pierwotny
- Rok budowy:2025
- Sprzedaż:Pośrednik
- Cena: 5 500 000 zł / 18333 zł/m2
Opis oferty
KRAKÓW- SWOSZOWICE LUKSUSOWA WILLA W STANDARDZIE PREMIUM Z BASENEM, SAUNĄ ORAZ SIŁOWNIĄNieruchomości Bracia Sadurscy mają przyjemność zaprezentować luksusową wille w pełni wyposażoną w najwyższym standardzie wykończenia. Zlokalizowaną na przedmieściach Krakowa w dzielnicy Swoszowice przy ulicy Chałubińskiego.
PRADOM 900 to prestiżowe osiedle składające się z czterech nowo wybudowanych pod klucz willi. Każda willa wyposażona zostanie w system inteligentnego domu oparty na platformie Grenton- który daje nam niesamowite możliwości zdalnego sterowania i programowania funkcji naszego domu z poziomu smartphone takich jak:
• Sterowanie oświetleniem: programowanie scen oświetlenia personalnie pod domownika
• Sterowanie temperaturą
• Obsługa bramy wjazdowej oraz furtki
• Obsługa bramy garażowej oraz drzwi wejściowych
• Integracja z systemem alarmowym
• Sterowanie ogrodem
• Sterowanie zasłonami w salonie
• Alarm
• Monitoring
Każda willa zaprojektowana w przemyślany sposób, nowocześnie urządzona i wykończona wysokiej jakości materiałami. PRADOM 900 to dwukondygnacyjny budynek o powierzchni użytkowej 300 m2 / 320 m2 (po podłodze) +taras piętro: 34m2 oraz parter: 70m2. Willa usytuowana jest na działce o powierzchni od 1063m2 do 1245m2 + udziały w drodze po 189m2.
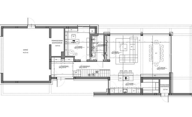
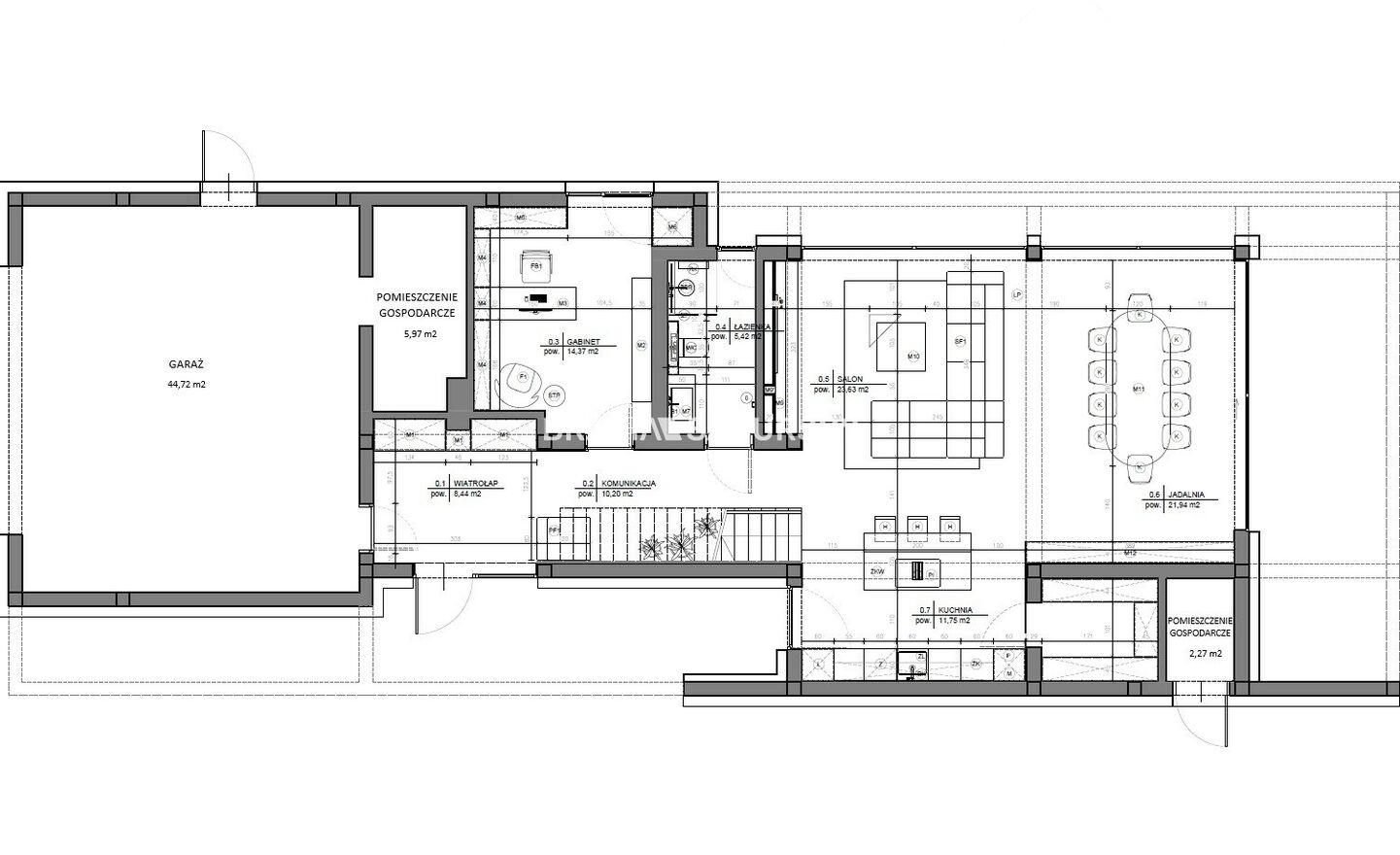
PARTER:
• wiatrołap
• kuchnia
• spiżarnia
• pomieszczenie gospodarcze
• salon
• jadalnia
• biuro
• łazienka
• komunikacja
• kotłownia
• garaż na dwa samochody
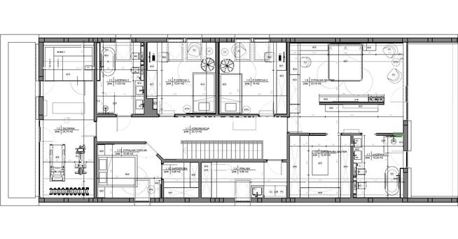
POZIOM 1
• sypialnia I
• sypialnia II
• sypialnia III typu MASTER z łazienką oraz garderobą
• sypialnia IV z garderobą
• łazienka II
• pralnia
• siłownia
• sauna
• komunikacja
Materiały użyte do budowy:
1. Budynek posadowiony na płycie fundamentowej żelbetowej
2. Ściana: murowane z bloczków ceramicznych Winerberger kalibrowany
3. Izolacja termiczna styropianem 20cm Austrotherm
4. Elewacja: o Tynk sylikatowy o Lamela drewniane Jesion w kolorze (olejowane) / Płyty kompozytowe imitujące drewno
5. Tynki wewnętrzne w technologii gipsowej
6. Pokrycie dachu: o Dachówka ceramiczna Creaton lub Bras
7. Podbitka dachowa: o Lamele drewniane: Jesion w kolorze (olejowane) lub płyty kompozytowe imitujące drewno
8. Okna: Aluminiowe Termoprofil + okna połaciowe-kolankowe Velux 9
9. Brama garażowa: Wiśniowski
10. Drzwi wejściowe: Wiśniowski lub RK (zamek elektryczny zdalnie sterowane)
11. Barierka balkonów: szyba klejona - hartowana
12. Całość wykonana zgodnie z projektem budowlanym.
Infrastruktura zewnętrzna:
1. Podjazd wyłożony płytami BrukBet, Novator, PolBruk
2. Opaska i chodniki wokół domu wyłożona płytami BrukBet, Novator, Polbruk
3. Taras wykończony płytkami tarasowymi BrukBet, Novator, PolBruk
4. Oświetlenie ogrodowe: pionowe słupki Libet lub Garden Light zgodnie z wizualizacją.
5. Zieleń ogrodowa: trawnik, tuje, miskanty, carex, brzozy, bukszpan wykonane zgodnie z wizualizacją, trawa siana + siatka zabezpieczająca przed gryzoniami.
6. System nawadniania automatyczny.
7. Ogrodzenie boczne i tylne wykonane z paneli systemowych zgodnie z wizualizacją.
8. Ogrodzenie od strony wjazdu wykonane z przęseł stalowych lakierowanych proszkowo w kolorze antracytowym.
9. Brama wjazdowa automatyczna otwierana na boki z przęseł stalowych lakierowanych proszkowo.
10. Furtka wyposażona w videodomofon.
11. Basen: 300*7000*1200
• System uzdatniania wody: Pełna automatyka basenowa
• Pompa ciepła podgrzewająca wodę w basenie
Willa na parterze będzie miała zamontowane trzy jednostki klimatyzacji firmy LG, natomiast na piętrze będzie pięć jednostek.
System centralnego ogrzewania oraz centralnej wody użytkowej oparty na pompie ciepła firmy YORK 20 KW
• W całym budynku ogrzewanie podłogowe
Wentylacja mechaniczna połączona z rekuperacją
• System wentylacji połączony z systemem Grenton co pozwala na dodatkowe oszczędności energii.
Planowany termin oddania inwestycji pod klucz to grudzień 2026 r.
Zapraszam do kontaktu:
Malwina Filas
Tel: +48 518 - pokaż numer telefonu -
E-mail: @
::DODATKOWE INFORMACJE
Kategoria oferty: Mieszkania dla rodzin z dziećmi
Prąd: jest
Gaz: brak
Woda: tak
Dojazd: kostka brukowa
Otoczenie: panorama
Ogrzewanie: pompa ciepła
Kanalizacja: szambo
Alarm: TAK
Internet: TAK
Komunikacja publ.: autobus
Drzwi antywłamaniowe: TAK
Klimatyzacja: TAK
Teren ogrodzony: TAK
Opłaty wg liczników: woda, prąd
Okna: aluminiowe
Instalacje: dobre
Balkon: jest
Liczba balkonów: 1
Tarasy: taras duży
Liczba tarasów: 1
Powierzchnia ogródka : 1063
Zagosp. działki: zagospodarowana
Ukształtowanie działki: lekko nachylona
Kształt działki: prostokąt
Rodzaj domu: wolnostojący
Stan wybudowania: Pod klucz
Typ elewacji: tynk szlachetny
Pokrycie dachu: dachówka ceramiczna
Powierzchnia użytkowa : 300
Stan budynku: BARDZO WYSOKI STANDARD
Podpiwniczenie: nie
Garaż: dwustanowiskowy
Ogrodzenie działki: ogrodzona
Rok budowy: 2025
Liczba pokoi: 6
Liczba sypialni: 4
Podłogi pokoi: deska drewniana
Ściany pokoi: malowane
Wyposażenie pokoi: umeblowane, TV, toaletka, szafa, stolik RTV, stolik nocny, meble - nowego typu, meble, łóżko 2 os., łóżko, dywan, biurko
Wystawa okien - pokoje : Zach, Wsch, Pd
Typ kuchni: aneks kuchenny
Rodzaj kuchni: aneks kuchenny połączony z jadalnią i salonem
Podłoga kuchni: deska drewniana
Wyposażenie kuchni: wyspa, stała zabudowa, szafki wiszące, szafki stojące, meble kuchenne na wymiar, zmywarka, zlewozmywak z baterią, zabudowa kuchenna, szafki kuchenne, piekarnik, okap kuchenny, lodówka, kuchenka
Wystawa okien - kuchnia: Zach
Typ łazienki: razem z wc
Liczba łazienek: 3
Glazura łazienki: nowego typu
Podłoga łazienki: inne
Wyposażenie łazienki: WC, umywalka, prysznic, lustro
Ściany łazienki: inne
Wystawa okien - łazienka : Zach, Pd
Liczba przedpokoi: 2
Podłoga przedpokoi: deska drewniana
Ściany przedpokoi: malowane
Wyposażenie przedpokoi: szafa zabudowana, domofon
::LINK DO STRONY
sadurscy.pl/offer/BS2-DS-308921
::KONTAKT DO AGENTA
Malwina Filas
+48 518 - pokaż numer telefonu -
@
::DANE BIURA
Oddział BS2, Rynek Pierwotny
Przewóz 47
30-081 Kraków
12 630-90-45
--------------------------
::GRATIS | Nasza prowizja zawiera: koszt przedwstępnej notarialnej umowy sprzedaży nieruchomości z rynku wtórnego.
::GWARANCJA | Gwarancja zwrotu zadatku. Więcej informacji na sadurscy.pl/zwrot-zadatku/
Oferta wysłana z systemu Galactica Virgo
Numer oferty: BS2-DS-308921
Sprawdź zainteresowanie tym ogłoszeniem
Wyświetlenia
Data dodania
Ostatnio widziany
Obserwujących
Wysłane zapytania
Odsłony telefonu
Powiadom o podobnych ogłoszeniach
Lokalizacja: Kraków
Kategoria: Nieruchomości » Domy » Sprzedaż
Cena: od 4675000 zł do 6325000 zł Powierzchnia : od 255 m2 do 345 m2
Chcę otrzymywać powiadomienia o nowych ofertach
To ogłoszenie jest archiwalne i może być nieaktualne.

Konto firmowe
Na Lento.pl od 17 lip 2019
Strona użytkownika
- Wypromuj ogłoszenie
- Zgłoś naruszenie
- Drukuj ulotkę
- Edytuj/usuń ogłoszenie
- Udostępnij ogłoszenie
- Dodaj na Facebook





























