2 pok. z ogródkiem i m. post.- Lipska (2025)
Kraków Pokaż na mapie ›
Dodane: Poniedziałek, 29 Grudzień, 2025 10:50
760 000 zł
20000 zł/m2
Szczegóły ogłoszenia
- Kategoria: Mieszkania / Sprzedaż
- Powierzchnia:38 m2
- Liczba pokoi:2 pokoje
- Zabudowa:Blok
- Tech. budowy:Inne
- Piętro :Parter
- Liczba pięter:Wieżowiec
- Rynek:Wtórny
- Rok budowy:2025
- Sprzedaż:Pośrednik
- Inf. dodatkowe:Balkon
- Cena: 760 000 zł / 20000 zł/m2
Opis oferty
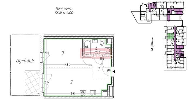
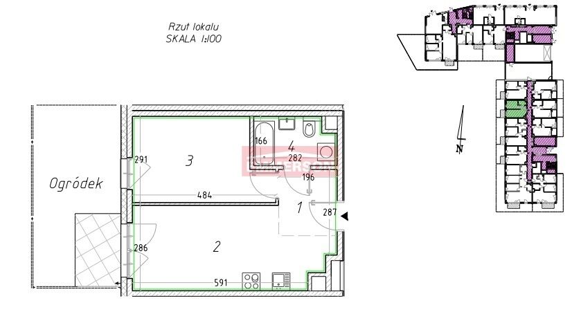
Nowe wykończone mieszkanie 2 pokojowe o powierzchni 38,17 m2 wbudynku przy ul. Lipskiej (z 2025 roku)
Rozkład pomieszczeń wg załączonego rzutu.;
- salon z aneksem kuchennym (16,92 m2)
- sypialnia (12,5m2)
- łazienka (4,36m2)
- przedpokój (4,39 m2)
Mieszkanie usytuowane na parterze. Do mieszkania przynależy ogródek
(ok. 20 m2).
Mieszkanie wykończone, gotowe do zamieszkania.
Dodatkowo':
Do mieszkania przynależy miejsce postojowe w garażu podziemnym w
cenie 50000, (obligatoryjny zakup).
Mieszkanie znajduje się w dzielnicy Płaszów. Dobrze skomunikowane z
miastem za pośrednictwem szybkiego tramwaju, którego przystanek
znajduje się w niewielkiej odległości od budynku (5 minut
piechotą).
W pobliżu szkoły, przedszkola, oraz mnóstwo sklepów. (Lidl i
Biedronka) - dosłownie pełna infrastruktura na wyciągnięcie ręki.
Nieruchomości położona jest zaledwie kilka minut od Zalewu Bagry
czy Parku Rzecznego Ogród Płaszów w Krakowie.
Dojazd do obwodnicy zajmuje ok. 10 minut.
zapraszam do oglądania
Opiekun oferty: Renata Lasoń
Powyższa oferta ma charakter informacyjny i nie stanowi oferty
handlowej w rozumieniu art. 66 par. 1 Kodeksu Cywilnego oraz innych
właściwych przepisów prawnych
Powiadom o podobnych ogłoszeniach
Lokalizacja: Kraków
Kategoria: Nieruchomości » Mieszkania » Sprzedaż
Cena: od 646000 zł do 874000 zł Powierzchnia : od 32 m2 do 44 m2
Chcę otrzymywać powiadomienia o nowych ofertach
Renata Lasoń
Konto firmowe
Na Lento.pl od 17 mar 2021
Odpowiada szybko
Strona użytkownika
- Wypromuj ogłoszenie
- Zgłoś naruszenie
- Drukuj ulotkę
- Edytuj/usuń ogłoszenie
- Udostępnij ogłoszenie
- Dodaj na Facebook











